
貸家
「13万円」領家2丁目貸家「2SDK」
物件番号:BK-7371
ギャラリー
概要
| 物件名 | 下野ビル |
| 所在地 | 川口市領家2丁目4-12 |
| 交通 | JR京浜東北線「川口駅」までバス13分 「領家一丁目」バス停 徒歩6分 JR京浜東北線「赤羽駅」までバス19分 「領家」バス停 徒歩5分 埼玉高速鉄道 川口元郷 徒歩20分 |
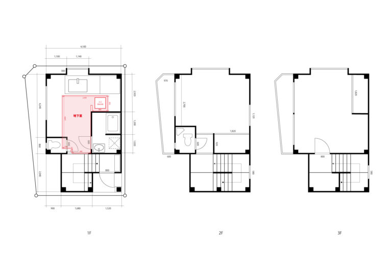
| 面積 | 80.76m² |
| 賃貸料(月額) | 130,000円 - |
| 敷金/保証金 | 敷1ヶ月 |
| 礼金 | 1ヶ月 |
| 更新料 | 新賃料 1ヶ月 |
| 構造・規模 | 鉄骨造3階建 |
| 築年 | 1989年9月 |
| 備考 | 賃貸保証:要 初回に賃料の50% 2年ごとに30% 火災保険:要 20,000円(2年毎) 駆けつけ365:11,000円(2年毎) 鍵交換代:20,000円~ 更新時、更新事務手数料:賃料の25% |
アクセスマップ
QRコード
この物件の受付・お問合せ
埼玉県知事(14)第5039号
物件の受付はお客さまからのお申し込み順でおこなっています。気になる物件がありましたら、まずはご連絡ください。
