
貸倉庫
「93.5万円」領家4丁目「89.3坪」
物件番号:BK-7394
お知らせ:2026年8月引渡し予定
ギャラリー
概要
| 物件名 | 貸し倉庫A・B・C |
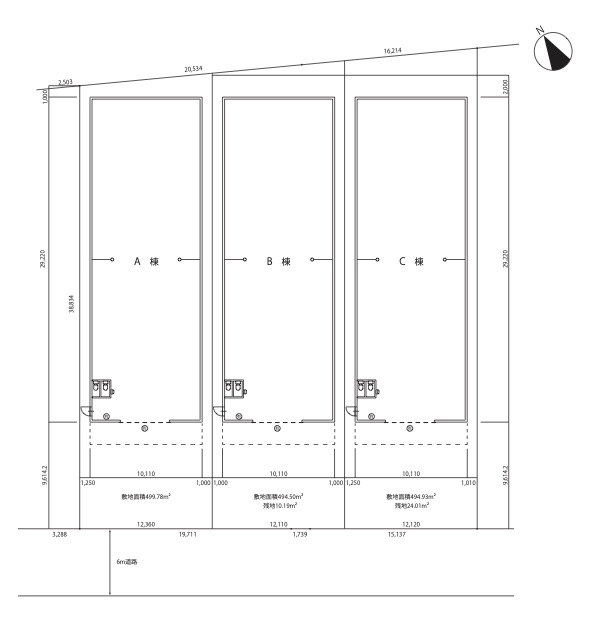
| 所在地 | 川口領家4−8−17 |
| 面積 | 295.41m²
建物延面積:259.41m² |
| 賃貸料(月額) | 935,000円 (税込み) |
| 敷金/保証金 | 敷2ヶ月 |
| 礼金 | 礼2ヶ月 |
| 用途地域 | 工業地域 |
| 構造・規模 | 鉄骨造平家建て |
| 接道状況 | 6m道路に約12m接道 |
| 築年 | 2026年8月 |
| 備考 | 庇2m、トイレ洋式2基、軽量自動シャッター4.5×4m、 ポスト、 高さ6〜7m、床荷重1,000kg/m²、倉庫外に水道 更新時、更新事務手数:要 更新料:新賃料 1ヶ月 賃貸保証:加入要 :初回に100% 毎年10% |
アクセスマップ
QRコード
この物件の受付・お問合せ
埼玉県知事(14)第5039号
物件の受付はお客さまからのお申し込み順でおこなっています。気になる物件がありましたら、まずはご連絡ください。
